网站首页
技术解决方案
技术解决方案
· 曲线溜槽技术
· 无动力除尘技术
· 回程带料清扫系统
· 跑偏解决方案
· 磨损解决方案
智慧化解决方案
智慧化解决方案
· 智能运维系统
· 智慧化料场管理系统
· 电压互感器在线监测系统
· 工业电气设备机舱微正压智能环控机
产品中心
产品中心
· 物料清洁转运
· 智能运维系统
· 智慧化料场管理系统
· 生产辅助系统
服务案例
服务案例
· 电站行业
· 散货港口行业
· 煤炭行业
· 石化行业
· 其他行业
新闻中心
新闻中心
· 凯瑞资讯
· 行业资讯
关于凯瑞
关于凯瑞
· 公司简介
· 企业文化
· 发展历程
· 荣誉资质
联系我们
联系我们
· 联系我们
· 服务中心
· 加入我们
· 资料下载
OA入口
|
企业邮箱
网站首页
技术解决方案
曲线溜槽技术
无动力除尘技术
回程带料清扫系统
跑偏解决方案
磨损解决方案
智慧化解决方案
智能运维系统
智慧化料场管理系统
电压互感器在线监测系统
工业电气设备机舱微正压智能环控机
产品中心
物料清洁转运
胶带清扫器系统
3-DEM曲线落煤管技术
3-DEM除尘系统
胶带纠偏托辊系列
缓冲床
胶带排水装置
耐磨衬板系列
智能运维系统
胶带输送系统无人少人值守
斗轮机自动作业系统
配仓协同作业机器人
清扫器云平台
智慧化料场管理系统
数字化煤场
设备人员定位系统
盘煤系统
煤场安全管理
生产辅助系统
服务案例
电站行业
散货港口行业
煤炭行业
石化行业
其他行业
新闻中心
凯瑞资讯
行业资讯
关于凯瑞
公司简介
企业文化
发展历程
荣誉资质
企业资质及荣誉
智能专利
软件著作权证书
联系我们
联系我们
服务中心
加入我们
资料下载
产品中心
凯瑞科技提供给用户切实可行的系统解决方案,让您的散状固体物料胶带输送更清洁更安全、更高效。
当前位置:
首页
>
产品中心
>
物料清洁转运
>
3-DEM曲线落煤管技术
物料清洁转运
智能运维系统
智慧化料场管理系统
生产辅助系统
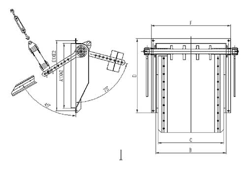
3-DEM缓冲集流导流装置
发布时间:2019-02-11
编辑:
◆
3-DEM缓冲集流导流装置采用高耐磨、耐冲击、具有良好弹性的聚氨酯弹性体。通过模具成型, 装置设计满足不同尺寸不同形状溜槽结构的需要,3-DEM缓冲集流导流装置的作用是保证物料的汇集输送,切断物料流动时剪切空气而产生的诱导风,抑制二次粉尘的产生。
◆
3-DEM缓冲集流导流装置采用可抽出式设计,便于安装、维护和更换。